Многие знают, что компания ПИК преимущественно строит жилые здания с монолитным железобетонным каркасом.
Железобетонный каркас состоит из:
- фундамента
- вертикальных конструкций
- перекрытий
- лестниц и пр.
Поэтому проектировщики ПИК большую часть времени занимаются разработкой комплектов чертежей по железобетонным конструкциям в Revit. Так как в основном проектируются жилые здания, которые имеют схожие конструктивные решения, то многое можно унифицировать и типизировать:
- приямки
- колонны и пилоны
- лестничные площадки
- лестничные марши
- лестнично-лифтовые узлы и пр.
В нашей компании был выбран путь по сокращению трудозатрат на моделирование и оформление типовых конструкций.
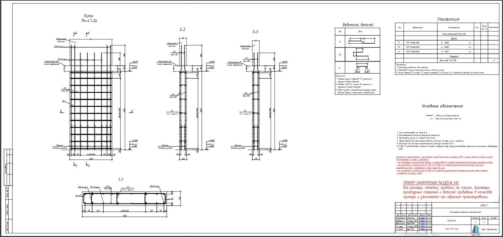
В данной статье мы подробнее расскажем про колонны и пилоны.
Для колонн и пилонов использовали разные подходы, в результате которых появилось три плагина:
- Типовые пилоны
- Армирование пилонов
- Пилоны модуля
Все плагины независимы друг от друга.
«Типовые пилоны»
Плагин был разработан в 2022 году. Он армирует типовые пилоны, колонны и стены на типовых этажах (этажи со второго до технического), на техническом этаже и на кровле. Причем пилоны могут быть по форме как прямыми, так и Г-образными, могут содержать отверстия и закладные детали.
Плагин работает по следующему принципу:
- анализирует выбранную конструкцию
- анализирует заданные проектировщиком настройки армирования
- подбирает в базе необходимое армирование
- размещает армирование в конструкцию. Армирование выполнено в виде загружаемого ifc семейства
База с типовым армированием выполнена в виде загружаемых ifc семейств и хранится в библиотеке Family Manager. Наполнением базы в Family Manager занимаются Координаторы по ТИМ группы «Фабрика семейств».
Но прежде чем обратиться к Family Manager, инструмент обращается к таблице, в которой хранятся все данные по типовым пилонам. За ее актуальность отвечают Координаторы по ТИМ в отделе внедрения.
В начале база состояла только из пилонов типовых и технического этажей. Но потом разрослась и стала включать в себя пилоны на кровле, типовые стены на типовом и техническом этаже.
Плагин «Типовые пилоны» моделирует армирование, но не оформляет чертежи. Чертежи по типовым пилонам хранятся в отдельной базе, в формате dwg.
Данный инструмент сократил трудозатраты проектировщиков на армирование одного пилона до 30 секунд.
Но данный подход имеет свои нюансы:
- нельзя заармировать не типовой пилон
- добавление нового типового пилона происходит не быстро, т.к. требуется разработка нового семейства
- плагин армирует пилоны только определенной высоты и определенной формы, которые имеются в базе. Чтобы плагин научился армировать другие пилоны, например на первом этаже или в подвале, нужно наполнять базу
- существует зависимость от работоспособности Family Manager, если происходит сбой, то плагин также перестает работать (это происходит крайне редко, но все равно вызывает «лишние» волнения среди проектировщиков)
«Армирование пилонов»
Прочувствовав на практике все нюансы плагина «Типовые пилоны», команда BIMTeam разработала в 2025 году новый плагин «Армирование пилонов».
Он армирует типовые и не типовые пилоны, колонны и стены на любых этажах.
Плагин работает по следующему принципу:
- анализирует выбранную конструкцию
- анализирует заданные проектировщиком настройки армирования
- подбирает в базе необходимое армирование
- размещает армирование в конструкцию. Армирование выполнено в виде системных семейств
База с типовым армированием выполнена в виде таблицы и хранится в папке на сервере. Для гибкого управления базой была разработана ролевая модель, руководители подразделений самостоятельно назначают некоторым проектировщикам роль «Администратор», которая через интерфейс плагина позволяет взаимодействовать с самой базой. Если требуется добавление нового типового пилона, то это происходит без участия команды ТИМ. Таким образом, мы разработали более универсальный и гибкий плагин для армирования пилонов и колонн.
И судя по количеству запусков за 2025 год, он практически полностью заменил «Типовые пилоны».
«Пилоны модуля»
Третий подход в армировании типовых колонн и пилонов связан с применением условной арматуры. О самом подходе мы подробно рассказывали на вебинаре в нашем ТГ-канале. В рамках данного подхода в 2025 г. был разработан плагин «Пилоны модуля». Он армирует типовые пилоны и колонны на типовых этажах. Причем только прямые по форме, без отверстий, но с закладными деталями.
Условная арматура - это «кубики», в которые зашиты параметры армирования, например расход арматуры.
Плагин работает по следующему принципу:
- анализирует заданные проектировщиком настройки опалубки и армирования
- подбирает в базе необходимый пилон
- размещает пилон в модели. Пилон выполнен в виде загружаемого ifc семейства, в которое вложены «кубики» с условной арматурой
База с настройками модульных пилонов хранится в специализированной базе данных, доступ к которой осуществляется через Swagger. Загружаемое ifc семейство «болванки» модульного пилона хранится в библиотеке Family Manager.
Как и в Армирование пилонов есть ролевая модель и наполнением базы выполняется проектировщиками с ролью «Администратор».
Чертежи по модульным пилонам хранятся в отдельной базе, в формате rvt.
Чертежи по модульным пилонам хранятся в отдельной базе, в формате rvt.
Выводы
Каждый из подходов имеет свои особенности, для наглядности сравним их в таблице ниже:
Каждый из подходов имеет свои особенности, для наглядности сравним их в таблице ниже: